Oficinas G&R
El diseño y la construcción de esta oficina, se planteo desde el diseño de la marca, el cliente buscada desarrollar un proyecto que se identifique la identidad de la marca con el diseño de las oficinas de G&R Soluciones, para esto se ha decido emplear el color predominante de la marca, el azul.
También otro requisito del proyecto era dar una sensación de modernidad, debido a que el rubro de la empresa es de tecnología, para esto se ha planteado utilizar formas curvas y plantear el desarrollo de luces retroiluminadas para dar una sensación más futurista.
Teniendo como resultado un espacio iluminado con luces frias, directas e indirectas, logrando balancear el diseño entre colores azules, blancos y negros, para mantener la identidad de la marca, además utilizar grandes ventanales, logotipos en alto relieve e iluminados. Además, se ha colocado dos televisores que sirven como pantallas publicitarias al ingreso y una mesa de exhibición de productos conjuntamente con una repisa.
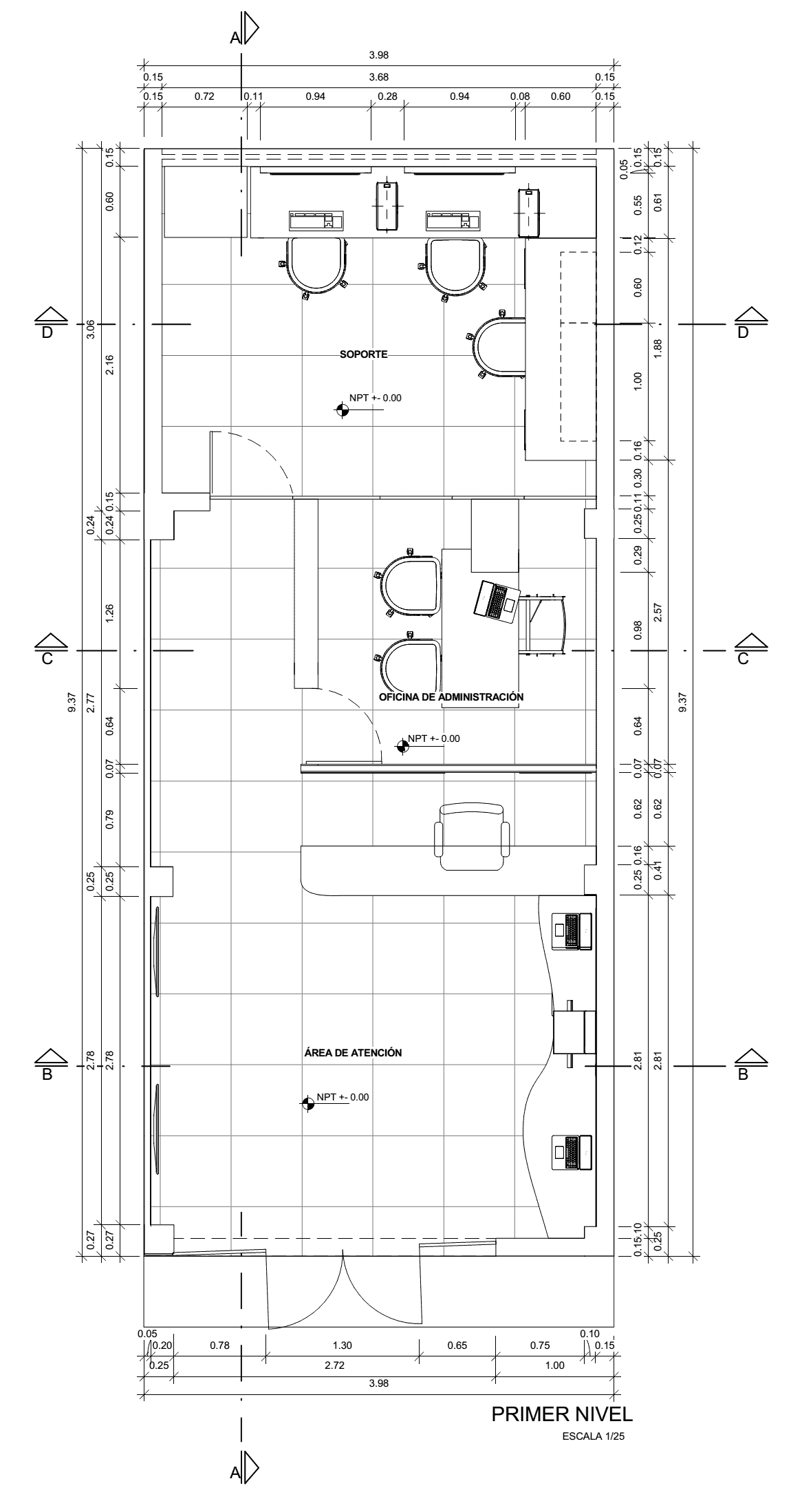
De la distribución del diseño de la oficina
En la recepción, se ha plateando los mobiliarios curvos, en melanima con fornica blanca de alto brillo.
En la oficina, tenemos un mobiliario curvo de diseño exclusivo para el gerente y dos sillas para los visitantes, además allí esta el centro de control para videovigilancia y redes inalambricas.
En el área de soporte técnico, contamos con 3 módulos, siendo 2 módulos para el área de soporte informático, y un modulo para el área de soporte electrónico. El área cuenta con 2 monitores empotrados y 4 puntos eléctricos para los tres módulos.







